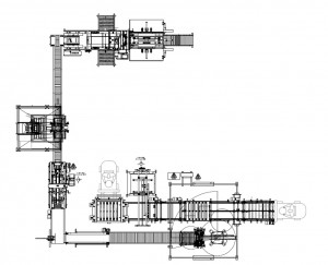
Klippenstein Corporation’s Almond Packaging Lines can be configured to meet a variety of needs. From Semi-Automatic packaging systems to a Fully Automatic packaging line with Robotic Palletizing, Klippenstein Corporation almond packaging lines can have your product boxed and ready for shipment.
Semi-Automatic Almond Packaging
Fully Automatic Almond Packaging

Bin Indexing Line


